Aménagement de combles : optimisez vos espaces
L’aménagement de combles est la solution idéale pour transformer vos espaces perdus en un véritable nouvel étage. C’est un projet de rénovation qui valorise votre maison. Nous sommes experts pour aménager cet espace, vous permettant un gain de surface et un confort de vie amélioré. Notre équipe est à votre disposition pour concrétiser votre projet d’aménagement de combles et vous donner des idées.
Chaque projet est unique, c’est pourquoi nous proposons des solutions sur mesure. Imaginez votre suite parentale et sa chambre principale, un bureau fonctionnel, des rangements sur mesure ou une salle de jeux : les combles aménagés offrent un potentiel incroyable et de nombreuses idées de déco. Ces travaux permettent non seulement d’augmenter la surface habitable de votre maison, mais aussi d’ajouter de la valeur à votre bien.



Notre approche et la gestion de projet
Notre approche intègre la collaboration avec des co-traitants qualifiés et reconnus (couvreur, électriciens, plombiers, etc.) pour vous garantir une réalisation de qualité pour l’ensemble des travaux d’aménagement combles. Dès la phase de conception, nous élaborons des plans 3D de vos futurs combles aménagés, vous permettant de visualiser votre futur espace et d’apporter toutes les modifications nécessaires avant le début des travaux. L’objectif est d’avoir un plan de A à Z pour votre projet.
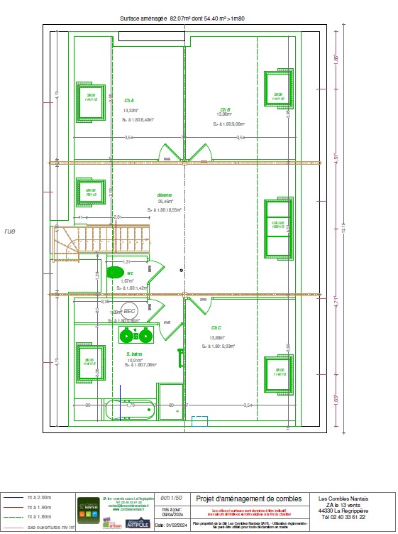
Lors de l’aménagement de vos combles, il faut penser à l’emplacement de votre escalier pour accéder au nouvel étage. Le plan de l’escalier est une pièce maîtresse de votre projet.
Faisabilité technique et démarches administratives
Avant de vous lancer dans ce projet, il est important de vérifier la faisabilité technique. La hauteur sous faîtage est un critère essentiel, tout comme la pente de la toiture, l’état de la charpente et l’isolation. Il faut aussi vérifier les règles d’urbanisme locales ; une déclaration préalable de travaux est souvent nécessaire. Ces travaux d’aménagement combles nécessitent une bonne préparation pour optimiser le chantier.
Nous gérons l’ensemble du processus de votre projet, de l’étude de faisabilité à la livraison finale de vos combles aménagés, en visant un confort maximal. Ces travaux d’aménagement de combles sont complexes, c’est pourquoi nous nous adaptons à votre budget pour aménager votre espace.
Faites confiance à notre équipe pour concrétiser votre projet d’aménagement de combles et donner une nouvelle dimension à votre maison. La déco finale de votre nouvel étage vous surprendra ! Nous intervenons sur tous les types de charpente pour optimiser votre espace aménagé. Ces travaux permettent aussi d’améliorer l’isolation globale de la maison, un gage de confort.

Aménagement selon les types de charpente
Nous intervenons sur tous les types de charpente pour optimiser votre espace aménagé. Ces travaux permettent aussi d’améliorer l’isolation globale de la maison, un gage de confort.

Charpente traditionnelle
La charpente traditionnelle offre un réel avantage pour aménager vos combles. Elle permet d’exploiter pleinement tout l’espace disponible avec une bonne hauteur. En conservant les poutres apparentes, vous créez un espace chaleureux. De plus, l’utilisation de fenêtres de toiture vient sublimer ces volumes et rend vos combles aménagés lumineux et fonctionnels. C’est l’espace parfait pour une nouvelle chambre principale ou un bureau, avec un confort et une décoration soignée.

Charpente fermettes
La charpente industrielle occupe l’intégralité de l’espace, le rendant difficilement aménageable en l’état. Pour transformer et aménager ces combles en véritables espaces habitables (nouvel étage, bureau, chambre…), des travaux structurels sont nécessaires pour optimiser la structure. Une fois ces travaux effectués, les combles peuvent être correctement aménagés et recevoir une isolation performante, offrant un confort thermique optimal. Vous pouvez alors y créer de nouvelles chambres, un bureau, ou des espaces de vie supplémentaires avec des rangements intelligents. L’isolation de cet espace est essentielle pour le confort de votre maison.







